Guardian G系列的帶鋸機採用的安全急停系統,是透過專利的四鏡頭視覺辨識系統,在鋸帶的所有曝露範圍內,建立一個立體三維的安全防護區域。當系統偵測到操作人員配戴的藍色手套進入危險區域(安全防護區域)時,會馬上啟動安全機制,對鋸帶施加煞車,使鋸帶在數毫秒內停止運轉。
每一次安全事件的影像資料,以及其他帶鋸機的運作效能數據,皆會上傳至雲端平台,作為操作人員技能提升與教育訓練之用。
比 3 倍更低的維護成本
透過精密的智慧工程設計,Guardian 安全急停帶鋸機可以提升產能,同時降低維護費用。
安全啟動卻不損傷帶鋸
我們專利的高速攝影視覺辨識系統,即使手套有部分被遮蔽,也能偵測到操作人員的手套。系統在鋸帶全長建立三維安全區域,在潛在危險發生前即刻啟動安全保護。
IP69k 高防護等級,清潔更容易
清潔機器只需打開門即可,所有電子元件皆採用 Moisture Guard™ 防護,能承受高壓熱水沖洗。無須拆卸複雜零件,操作簡單又安全。
無強制維護週期
我們依據您的需求量身打造服務模式,不多也不少,剛好支援到位。搭配完整的文件與操作指南,您的內部團隊即可解決大部分問題,不必支付昂貴技師費用。
螢幕中的影像是由鋸片上下左右一共四組高速攝影鏡頭所拍下的影片


🛡 Guardian Bandsaw 安全帶鋸機
帶鋸機的工傷事故,代價從來不只是停機。醫療、賠償、停工、人力流失與管理風險而已,其最終往往讓企業付出更高昂的隱形成本 (員工對工作安全失去信心/員工離職率升高/重新招募費時費力/產品交期延誤與客戶流失/勞檢次數提高/工傷保險、責任險保費上調/企業聲譽受損/ ESG & CSR 評分下降…等)
Guardian Bandsaw 安全帶鋸機,就是為了讓這些高昂的成本「不再發生」。
⚡ 關鍵瞬間,自動介入
當操作人員意外接觸鋸帶時,Guardian 立即啟動保護機制,快速制動、降低傷害程度,把事故風險控制在最小範圍。
💰 安全=實際的成本節省,導入 Guardian,企業可有效:
✔ 降低工傷事故與賠償風險
✔ 減少停工與產線中斷
✔ 降低人員流動與訓練成本
✔ 強化工安管理,避免法規風險
✔ 安全投資,實際回收。
🏭 讓客戶、員工與管理層都安心
員工:更安全的工作環境
管理者:更低的事故風險
企業:更穩定的營運與品牌信任
✅ Guardian Bandsaw 把風險降到最低,把損失擋在發生之前。
🌀🌀 Guardian Bandsaw 是一台「有眼睛的帶鋸機」🌀🌀
想像一台帶鋸機有眼睛能夠看得見你的手,在危險發生前就主動保護你。
📍 Guardian Bandsaw 採用專利 3D 視覺辨識系統,透過4組鏡頭建立立體三維的安全區域,因此可精準偵測操作人員手部位置,當偵測到潛在危險時,立即啟動高速剎車,瞬間停止鋸帶,將傷害風險降到最低。
Guardian 的「有眼睛的帶鋸機」,不只是一套安全設備,更是企業面對:
✔ 工安稽核與法規遵循
✔ 職災風險管理
✔ ESG 與企業責任
✔ 穩定生產與成本控管
🛡 Guardian Bandsaw G系列安全急停帶鋸機 專為鑄造行業提供不同機型可供選擇 :
🛡 Guardian G-900型 是鑄造行業專用高效鋸切解決方案
在鑄造產業中,澆口、冒口、鑄件毛邊的切除效率與精度,直接影響產線節奏與成品品質。Guardian Bandsaw G-900是專為高強度鑄造應用而設計,結合穩定結構、強勁切削力與高安全標準,成為鑄造廠不可或缺的鋸切利器。
🔧 專為鑄造環境打造
☑️ 適用於 鑄鐵、球墨鑄鐵、鑄鋼及高硬度合金鑄件
☑️ 穩固機身結構,有效吸收震動,確保切割穩定
☑️ 可長時間連續運轉,滿足鑄造產線高負載需求
⚙️ 提升產能與一致性
☑️ 高效率鋸切,大幅縮短澆口與冒口切除時間
☑️ 切面平整,減少後續研磨與修整工序
☑️ 適合單件、小量到批量鑄件加工
🛡️ 工業級安全與耐用設計
☑️ 強化鋸帶導引系統,延長鋸帶壽命
☑️ 完善的安全防護機構,降低操作風險
☑️ 適合鑄造現場粉塵、高溫環境使用
💰 降低整體製造成本
☑️ 減少人工作業時間
☑️ 降低耗材與維護成本
☑️ 提升鑄件良率,穩定品質輸出
產品特色 :
✅ 雙重安全防護系統(3D Vision™+接觸感測)
✅ 高扭力 10HP 馬達,輕鬆應對鑄鐵、球墨鑄鐵、鑄鋼及大型鑄件澆口切除
✅ 專為高產量鑄造產線設計,適合長時間連續運轉,滿足鑄造廠批量生產需求
✅ 多樣化客製化工作台配可依鑄件尺寸、重量與澆口位置調整,提升操作效率
✅ 可選集塵或冷卻液系統,改善工作環境並延長設備壽命。
✅ XL 加大型切割規格(36” × 36”)適合大型、厚重鑄件加工,減少翻面與重複搬運。
✅ 錳鋼耐磨板工作台,專為高硬度、重型鑄件設計,大幅提升耐磨性與使用壽命。
✅ 氣壓式鋸帶張力系統,確保鋸帶穩定張力,降低斷帶風險,減少停機時間。
✅ 高強度碳鋼機身與工作台結構,抗震、耐用,適合鑄造廠嚴苛使用環境。
✅ Blade Protect™ 鋸帶保護系統,延長鋸帶壽命,降低耗材成本,提升整體製造效益。
產品規格 :
💢 鋸帶尺寸 : 5486 × 19 mm
💢 鋸帶速度 : 25 公尺/秒
💢 馬達 : 7.5 kW 或 10 HP
💢 切割能力 : 900 mm(寬)× 600 mm(高)
🛡 Guardian G-900 帶鋸機產品介紹影片 :
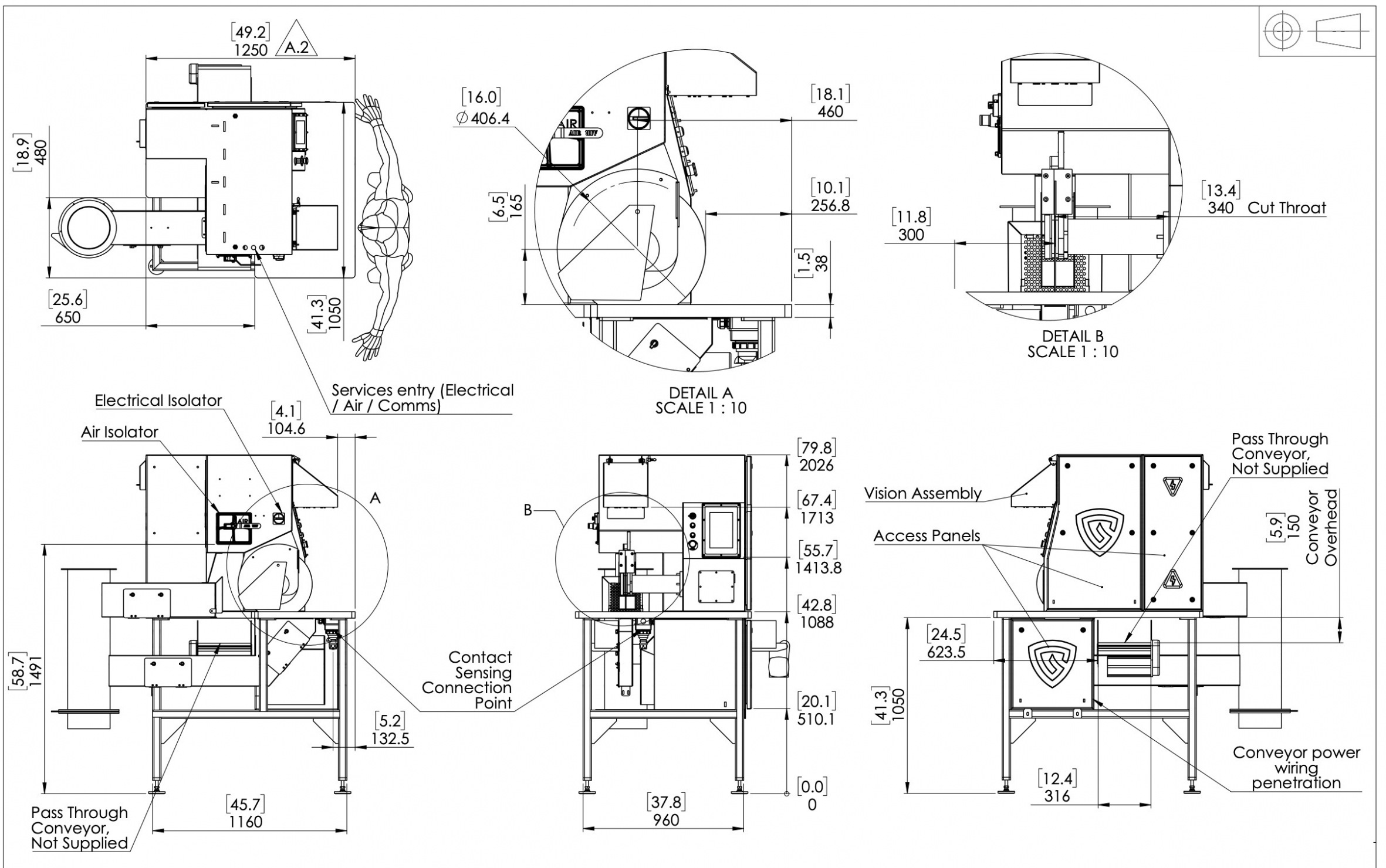
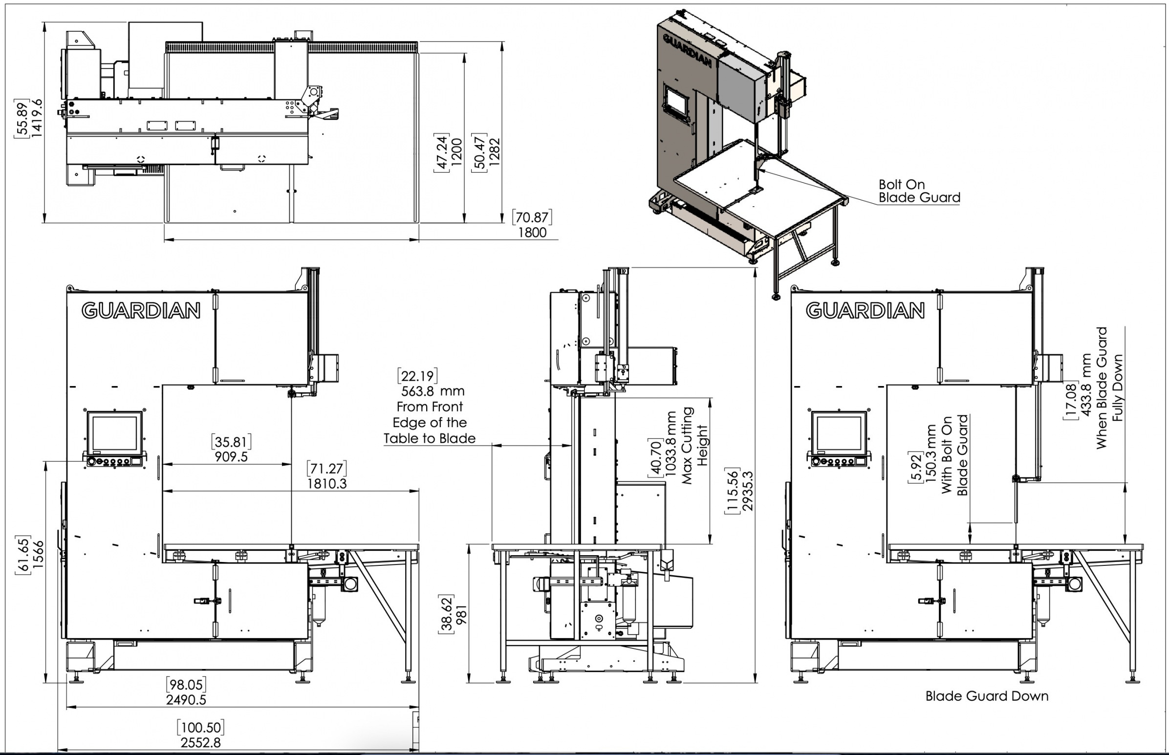
🛡 Guardian G-900 XL 產品尺吋圖 :
❇️ ❇️ ❇️ ❇️ ❇️ ❇️ ❇️ ❇️ ❇️ ❇️ 產品分隔線 ❇️ ❇️ ❇️ ❇️ ❇️ ❇️ ❇️ ❇️ ❇️ ❇️
Guardian Bandsaw G-Series 智慧自動張力調整
Guardian G-系列安全帶鋸機,全部都搭載了電動「鋸帶自動張力」調整功能,能夠自動調整鋸帶的張力至最佳狀態,確保切割的穩定性與操作安全。這項創新設計不僅提升生產效率,也降低操作人員因張力不當而產生的受傷風險。
功能亮點 :
⚡ 自動張力調整:保持鋸帶最佳張力,切割精準、平穩
🛡 降低操作風險:減少鋸帶跳動或異常斷裂,保護操作人員
⏱ 提升產能:減少停機與手動調整時間
🔧 簡化維護:操作更直覺,維護更方便
Guardian G-Series——智慧張力,自動守護安全與產能。
🛡 Guardian Bandsaw G系列安全急停帶鋸機 vs 傳統帶鋸機7大核心差異的比較 :
🛡 Guardian Bandsaw G系列安全急停帶鋸機,在鋸帶的上下左右四個象限,
設有4組高速攝影的視覺感測鏡頭 (照片中的四個紅框/安全防護區)
🛡 Guardian Bandsaw G系列安全急停帶鋸機,在鋸帶的上下左右四個象限,
設有4組高速攝影的視覺感測鏡頭 (照片中的四個紅框/安全防護區)
🛡 Guardian Bandsaw G系列安全急停帶鋸機 🛡
在鋸帶的上下左右四個象限安全區域 在鋸帶上下左右裝有四個高速攝影像機
🛡 Guardian 「有眼睛的」帶鋸機相關產品介紹影片 :
🛡 Guardian 銅鑄件圓鋸機 🛡
Guardian Abrasive Saw 銅鑄件圓鋸機 - 是全球首款「零事故」砂輪切割機
Guardian Abrasive Saw 銅鑄件圓鋸機,是以創新安全技術為核心,徹底改善傳統砂輪切割在鑄造與金屬加工產線中的高風險問題,特別適用於黃銅、青銅等有色金屬鑄件的切割作業。
透過先進的安全防護設計,大幅降低操作傷害風險,讓鑄造廠在維持高產能的同時,也能實現真正的「零事故」目標。
安全,不只是防護,更是競爭優勢
🌀🌀 Guardian Abrasive Saw 是一台「有眼睛的圓鋸機」🌀🌀
產品特色 :
✅ 3D Vision 智慧視覺技術 : 有效預防操作事故,大幅提升切割作業安全性
✅ 耐用鑽石鍍層鋼製切割盤 : 顯著降低單次切割成本,提高整體效益
✅ 相容樹脂切割片 : 安全系統可自動適應切割片磨耗與縮徑,確保穩定防護
✅ 變頻驅動系統 : 在整個切割過程中維持穩定轉速,確保切割品質一致
✅ 切割盤側邊可進行去毛邊作業 : 一機多用,提升作業效率
產品規格 :
💢 切割盤(鋸盤)尺寸 : 16 吋
💢 切割盤轉速 : 3,000 RPM
💢 馬達 : 7.5 kW / 10 HP
🛡Guardian Abrasive Saw 銅鑄件圓鋸機 獨特的「三維立體視覺感測」技術 :
它有眼睛,能夠看得見你的手,在危險發生前就主動保護你。
🛡Guardian Abrasive Saw 銅鑄件圓鋸機 vs 傳統圓鋸機差異的比較 :
🛡Guardian Abrasive Saw 銅鑄件圓鋸機 產品介紹影片 :
🛡Guardian Abrasive Saw 銅鑄件圓鋸機 產品尺吋圖 :
❇️ ❇️ ❇️ ❇️ ❇️ ❇️ ❇️ ❇️ ❇️ ❇️ 產品分隔線 ❇️ ❇️ ❇️ ❇️ ❇️ ❇️ ❇️ ❇️ ❇️ ❇️
🛡 Guardian 「有眼睛的」帶鋸機相關產品介紹影片 :